ニュース
JR京都線 向日町駅、自由通路・橋上駅舎西口が10月開通 東口で再開発
2025年8月26日 18:40
JR西日本は、JR京都線 向日町駅の自由通路(西口)・橋上駅舎の一部について、10月18日から利用可能とする。また、東口の新設・駅前広場整備と住宅・商業ビルの開発に着手する。
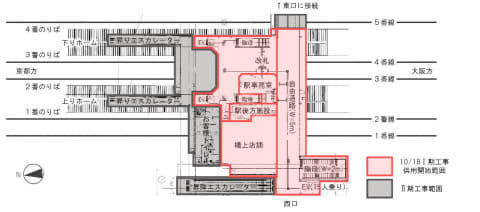
JR西日本は向日市と協定を締結のうえ、向日町駅の利便性向上に向けた駅改良工事を22年12月から進めてきた。10月18日から第I期工事範囲を利用可能とする。それに伴い、既存駅舎は10月17日終電後に使用を停止する。
自由通路は、改札より西側の部分の幅員5mの歩行者専用通路。第II期工事で開設する東口に接続する。
西口と駅舎外、橋上駅舎とホームの動線は、第I期ではエレベーターと階段のみ。いずれもエスカレーターは第II期工事で設置され、東口とあわせて2026年度冬頃から使用開始予定。その際にトイレも設置される。
東口では8月1日に「JR向日町駅周辺地区第一種市街地再開発事業」に着工。地区面積は0.8haで、駅ビル棟、住宅棟、東口駅前広場を整備する。規模は、駅ビルが5階建て、延床面積約5,700m2、住宅棟が38階建て、高さ約130m、約340戸、駅前広場が約2,400m2。工事期間は2028年度までの予定。




