前の画像
次の画像
記事へ
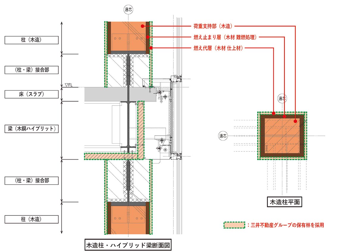
木造構造部イメージ
木造でも超高層ビルは可能!? なぜ木造ビルが増えているのか?
2024年10月2日
無印良品、初の木造店舗 本体完成・秋開業
2024年5月31日
日本橋に国内最大・最高層の木造ビル。三井不動産と竹中工務店
2020年9月29日
秋葉原に木造9階建てビル 熊谷組の新技術を日本初採用
2024年5月28日
日本橋に11階建て木造ビル 高層階のオフィスは純木造
2025年11月4日
北海道に木造の交番 CLT製箱形ユニットで工期短縮
2026年1月20日