前の画像
記事へ
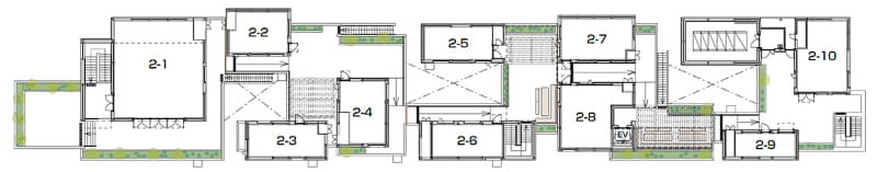
2階フロア図面 同上
下北沢にドン・キホーテ。28日オープン
2021年4月14日
下北沢の温泉旅館「由縁別邸 代田」に「離れ」。長期滞在客室30万円/月
2021年2月15日
下北沢に温泉旅館「由縁別邸 代田」が9月28日開業、8月3日予約開始
2020年8月3日
下北沢駅構内の商業施設「シモキタエキウエ」11月オープン
2019年10月15日
下北沢の駅高架下の新施設は「ミカン下北」 ‘22年3月開業
2021年11月10日
下北沢の新高架下施設「ミカン下北」 3月30日開業
2022年1月21日
下北沢の新高架下施設「ミカン下北」を見てきた
2022年3月28日
「下北線路街」が全面開業。小田急線路跡地 全長1.7km
2022年4月11日
下北沢の高架下「ミカン下北」、7月28日グランドオープン
2022年5月27日